





GARONA : Appartement T3 de 61 m2 Neuf, à Toulouse – Casselardit
IDYLHOM a le plaisir de vous présenter, « GARONA »
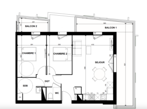
Cet appartement T3, neuf, d’une superficie totale de 60,77 m2, se situe dans une résidence neuve en bord de Garonne, dans le quartier de Casselardit.
Il dispose d’une pièce de vie de 30 m2, ouvrant sur une terrasse de 19 m2 faisant le tour du séjour exposé EST et OUEST, de chambres de 12 m2 avec balcon et de 10 m2, d’une salle de bains et d’un WC séparé. Deux places de parking accompagnent ce bien.
La résidence se compose de cinq îlots d’habitation non alignés afin de préserver les vis à vis. Cette disposition donne une dynamique architecturale à cet ensemble de 147 logements : appartements T1 au T4 & maisons individuelles sur les toits T5 au T5 Duplex.
Résidence d’exception, elle se démarque par son architecture audacieuse signée par le célèbre cabinet d’Architecture 2 PORTZAMPARC, qui a su sublimer l’équilibre entre le dynamisme de la ville et la tranquillité du fleuve.
Sa localisation privilégiée dans le quartier Casselardit- Ancely crée un cadre où la nature règne en maître, et où le charme urbain prime.
Bien plus qu’un lieu de vie, c’est une expérience de vie unique et privilégiée à quelques pas du cœur de ville, de ses commerces et des écoles qui s’offrent à vous.
Bien desservi par les transports en commun, vous accédez en moins de 5 minutes à pied de votre logement aux arrêts de tramway T1 et T2 “Arènes Romaines” et “Ancely”, vous permettant de rejoindre rapidement le centre-ville de Toulouse, ainsi que l’aéroport. À deux pas de la résidence, retrouvez de nombreux commerces et animations tels que le centre commercial de Purpan ou encore les Halles de la Cartoucherie, mais aussi plusieurs infrastructures scolaires et services qui rythment votre quotidien. Jardins du Barry, Hippodrome de la Cépière, Zénith de Toulouse…
Appréciez une offre variée de loisirs pour vos sorties, et ce, à quelques minutes en tramway ou à vélo de chez vous !
Surface loi Carrez: 60,77 m2
Prix du bien HAI : 175 000 €
Logements sous dispositifs BRS du T3 au T4 entre 175 000 € et 238 000 €
Logements sous dispositifs PINEL ou résidence principale du T1 au T5 entre 197 500 € et 890 000 €
« Les informations sur les risques auxquels ce bien est exposé sont disponibles sur le site Géorisques: www.georisques.gouv.fr » (C. envir., art. R. 125-25, I).
IDYLHOM spécialisé dans la VENTE / ACHAT / MISE EN LOCATION à Toulouse : Cartoucherie, Bourrassol, Purpan, Ancely, Casselardit, St Cyprien, Patte d’Oie, Minimes, Sept Deniers, Amidonniers,… et ses alentours : Colomiers, Blagnac, Beauzelle, Seilh, Aussonne, Cornebarrieu, Tournefeuille, Pibrac, Plaisance du Touch, Léguevin…
Un projet immobilier ? Contactez-nous pour bénéficier d’une estimation et de notre expertise.
Un projet de vie se rêve, puis se construit !
Diagnostic de performance énergétique (DPE)
Indice d'émission de gaz à effet de serre (GES)
Mentions Légales
1 place Hugues Panassié - 31300 TOULOUSE | Siret : 9194220970015 | RCS : TOULOUSE | Numero TVA Intracommunautaire : FR08919422097 | Forme juridique : SAS | Capital social : 1000 € | Assurance RCP : MMA IARD |
Carte T : CPI31012022000000117 | Date de délivrance : 2022-10-01 | Lieu de délivrance : 31000 Toulouse | Sans Garantie Financière | Nom du médiateur : SAS Médiation Solution | Adresse du médiateur : 222 chemin de la bergerie, 01800 St-Jean de Niost